Top Các Mẫu Thiết Kế Nhà Phố 3 Tầng 1 Tum Đẹp, Tối Ưu Công Năng Và Chi Phí 2026
- Nguyễn Thu Uyên
- 0 Comments
Trong bối cảnh đô thị ngày càng thu hẹp về diện tích xây dựng, Thiết kế nhà phố 3 tầng 1 tum đang trở thành xu hướng được nhiều gia đình lựa chọn. Mô hình này không chỉ giải quyết bài toán không gian sống, mà còn đảm bảo tính thẩm mỹ, chi phí hợp lý và khả năng thích nghi tốt với khí hậu Việt Nam.
Bài viết dưới đây DCCONS tổng hợp những mẫu thiết kế nổi bật cùng phân tích chuyên môn giúp gia chủ dễ dàng định hướng khi xây dựng nhà phố 3 tầng 1 tum.
Vì sao thiết kế nhà phố 3 tầng 1 tum được ưa chuộng?
Tối ưu diện tích sử dụng trong đô thị
Với quỹ đất hạn chế, việc phát triển theo chiều cao là giải pháp hiệu quả. Thiết kế nhà phố 3 tầng kết hợp tum giúp gia tăng không gian sinh hoạt mà vẫn đảm bảo mật độ xây dựng theo quy định.
Tầng tum có thể linh hoạt sử dụng làm:
-
Phòng thờ
-
Phòng giặt phơi
-
Kho lưu trữ
-
Khu thư giãn, sân vườn trên cao
Nhờ đó, công năng ngôi nhà được mở rộng mà không cần xây thêm tầng lớn, giảm đáng kể chi phí.

Giải pháp chống nóng và thông thoáng tự nhiên
Tum đóng vai trò như lớp đệm nhiệt, hạn chế bức xạ trực tiếp từ mái xuống không gian sinh hoạt bên dưới. Kết hợp cùng sân thượng và cây xanh, ngôi nhà có thể:
-
Tăng khả năng đối lưu gió
-
Giảm nhiệt vào mùa nắng
-
Cải thiện vi khí hậu tổng thể
Tăng giá trị thẩm mỹ mặt tiền
Trong thiết kế hiện đại, tầng tum thường được xử lý theo dạng giật cấp, kết hợp lam chắn nắng, kính hoặc giàn pergola. Điều này giúp công trình:
-
Tránh cảm giác khối hộp đơn điệu
-
Tạo chiều sâu kiến trúc
-
Nâng cao tính nhận diện mặt tiền
Top các mẫu thiết kế nhà phố 3 tầng 1 tum đẹp dẫn đầu xu hướng
1. Thiết kế nhà phố 3 tầng phong cách hiện đại
Phong cách hiện đại luôn nằm trong nhóm lựa chọn hàng đầu khi thiết kế nhà phố.
Đặc trưng:
-
Hình khối rõ ràng, phi đối xứng
-
Vật liệu kính, bê tông, gỗ nhựa ngoài trời
-
Tận dụng ánh sáng tự nhiên tối đa
Không gian bên trong thường theo hướng mở, liên kết phòng khách – bếp – khu sinh hoạt, tạo cảm giác rộng rãi hơn so với diện tích thực.

2. Mẫu nhà phố 3 tầng 1 tum tân cổ điển sang trọng
Đây là lựa chọn phù hợp với gia chủ yêu thích sự tinh tế và bề thế.
Điểm nhấn:
-
Phào chỉ nhẹ, không rườm rà
-
Ban công sắt mỹ thuật
-
Màu sắc trung tính: trắng, kem, be
Phần tum được xử lý khéo léo để không phá vỡ tỷ lệ mặt tiền, vẫn giữ sự hài hòa tổng thể.
3. Thiết kế nhà phố 3 tầng mặt tiền 4m – 5m
Nhà phố mặt tiền nhỏ cần giải pháp thiết kế thông minh để tạo cảm giác rộng và cao.
Giải pháp thường áp dụng:
-
Lam dọc tạo chiều cao thị giác
-
Mảng kính lớn mở rộng không gian
-
Tum lùi vào trong để giảm áp lực khối
Nhờ đó, công trình vẫn đảm bảo tính thẩm mỹ dù diện tích hạn chế.

4. Nhà phố 3 tầng có giếng trời và sân vườn
Giếng trời là yếu tố quan trọng giúp nhà phố luôn thông thoáng.
Lợi ích:
-
Tăng ánh sáng tự nhiên
-
Giảm phụ thuộc đèn điện ban ngày
-
Tạo luồng gió đối lưu
Kết hợp cây xanh tại giếng trời hoặc sân thượng giúp không gian sống dễ chịu và gần gũi thiên nhiên hơn.
Xem thêm: Tham Khảo Dịch Vụ Thiết Kế Nhà Phố 3 Tầng 1 Tum Chuyên Nghiệp Tại DCCONS

5. Mẫu nhà phố 3 tầng kết hợp kinh doanh
Mô hình này phổ biến tại các khu dân cư đông đúc.
Phân chia công năng:
-
Tầng 1: kinh doanh, showroom, cửa hàng
-
Tầng 2–3: không gian sinh hoạt
-
Tum: nghỉ ngơi, sân vườn riêng
Thiết kế cần đảm bảo tách biệt giữa khu kinh doanh và khu ở để duy trì sự riêng tư.

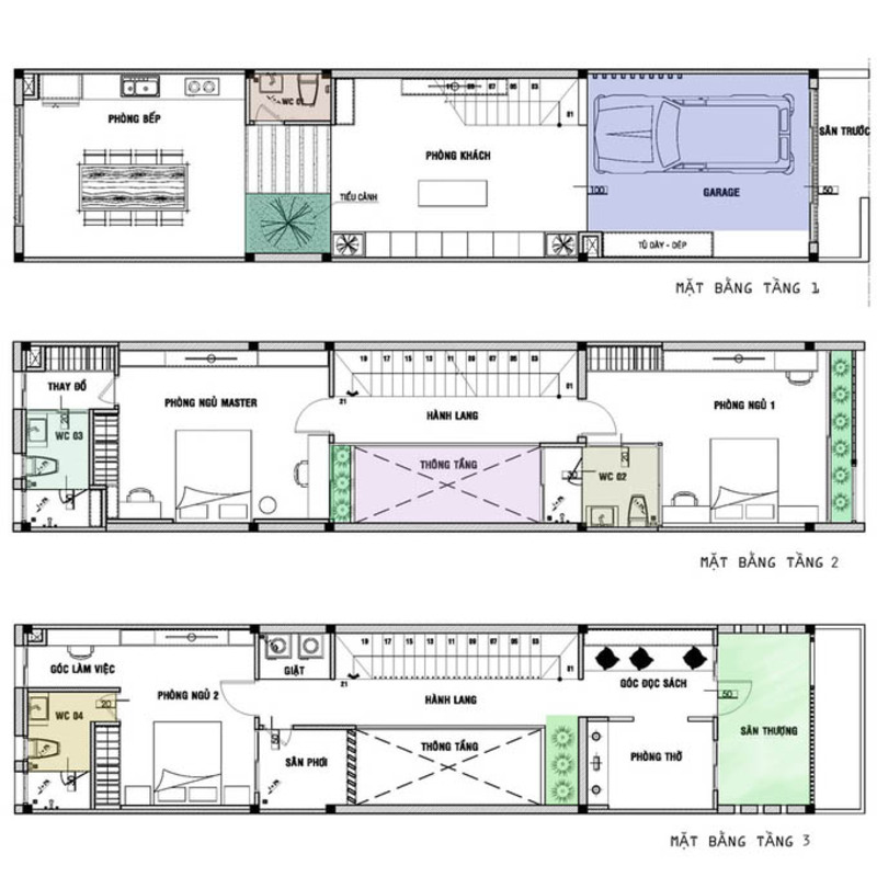
Gợi ý bố trí công năng khi thiết kế nhà phố 3 tầng
Tầng 1: Không gian sinh hoạt chung
-
Gara hoặc khu để xe
-
Phòng khách
-
Bếp – phòng ăn liên thông
-
WC nhỏ dưới cầu thang
Thiết kế theo hướng mở giúp tối đa diện tích và ánh sáng.
Tầng 2 – 3: Không gian riêng tư
-
Phòng ngủ master có vệ sinh riêng
-
Phòng ngủ con
-
Ban công và cửa sổ đón sáng
Nội thất nên ưu tiên giải pháp âm tường để tiết kiệm diện tích.
Tầng tum: Không gian đa năng
-
Phòng thờ
-
Sân thượng
-
Khu giặt phơi
-
Góc thư giãn ngoài trời
Đây là khu vực mang tính tinh thần và nghỉ ngơi, cần bố trí thông thoáng, yên tĩnh.

Chi phí thiết kế nhà phố 3 tầng 1 tum mới nhất
Chi phí phụ thuộc vào:
-
Diện tích xây dựng
-
Vật liệu hoàn thiện
-
Phong cách kiến trúc
-
Vị trí thi công
Mức giá tham khảo:
Xây phần thô + nhân công:
3.800.000 – 4.200.000 VNĐ/m²
Xây trọn gói:
-
Vật tư trung bình: 6.500.000 – 7.000.000 VNĐ/m²
-
Vật tư khá: 7.200.000 – 8.000.000 VNĐ/m²
-
Cao cấp: từ 8.500.000 VNĐ/m² trở lên
Tổng chi phí sẽ được tính theo diện tích quy đổi bao gồm móng, sàn, tum, mái và sân thượng.
Xem thêm: Tham Khảo Bảng Giá Thiết Kế Nhà Phố 3 Tầng 1 Tum Tại DCCONS

Kinh nghiệm quan trọng khi thiết kế và thi công
Nắm rõ quy định xây dựng tầng tum
Tùy từng địa phương, diện tích tum và chiều cao công trình có quy định riêng. Gia chủ cần làm việc với đơn vị thiết kế và cơ quan quản lý để đảm bảo hồ sơ pháp lý chuẩn.
Ưu tiên phong thủy và thông gió
-
Phòng thờ đặt vị trí cao, trang nghiêm
-
Tránh đặt dưới bồn nước hoặc khu vệ sinh
-
Bố trí cửa sổ, giếng trời hợp lý
Lựa chọn đơn vị thiết kế – thi công uy tín
Một đơn vị chuyên nghiệp sẽ:
-
Tư vấn công năng phù hợp nhu cầu
-
Dự toán minh bạch
-
Cam kết tiến độ và bảo hành công trình
Kết luận
Thiết kế nhà phố 3 tầng 1 tum là giải pháp cân bằng giữa thẩm mỹ – công năng – chi phí trong bối cảnh đô thị hiện đại. Với cách bố trí hợp lý, ngôi nhà không chỉ đáp ứng nhu cầu sinh hoạt mà còn trở thành không gian sống xanh, tiện nghi và bền vững theo thời gian.
Việc lựa chọn phong cách, vật liệu và đơn vị thi công phù hợp sẽ quyết định trực tiếp đến chất lượng công trình. Do đó, gia chủ nên đầu tư bài bản ngay từ khâu thiết kế để sở hữu một ngôi nhà đẹp, tối ưu và lâu dài.

